当前位置:房源网 > 写字楼                
                <
                            >
                        
                        	楼盘介绍
                        
                        复星国际中心为北京CBD核心区域的高档甲级写字楼。项目地上写字楼面积52600平方米,银行、高档餐饮、商务配套面积0.45万平方米,地下为员工食堂和三层车库。毗邻北京第一、二使馆区,地处CBD国贸商圈,北与东直门国门商圈和燕莎商圈交汇,西靠朝外商圈,向东与京广中心、央视连成一线。项目处在几大东部经济巨头的交融之地,直通三里屯酒吧街,又有使馆区的涉外优势,地理位置优越。紧邻朝阳北路和南三里屯路,朝阳北路主干道东西贯通,东接东三环主路,西达东二环朝阳门桥;南三里屯路(扩建改造规划中)将直接通达CBD核心区域。
                        	楼盘参数
                        
                        项目级别  甲级
                            楼  层  数 地下5层,地上31层
                            
                            占地面积m² 
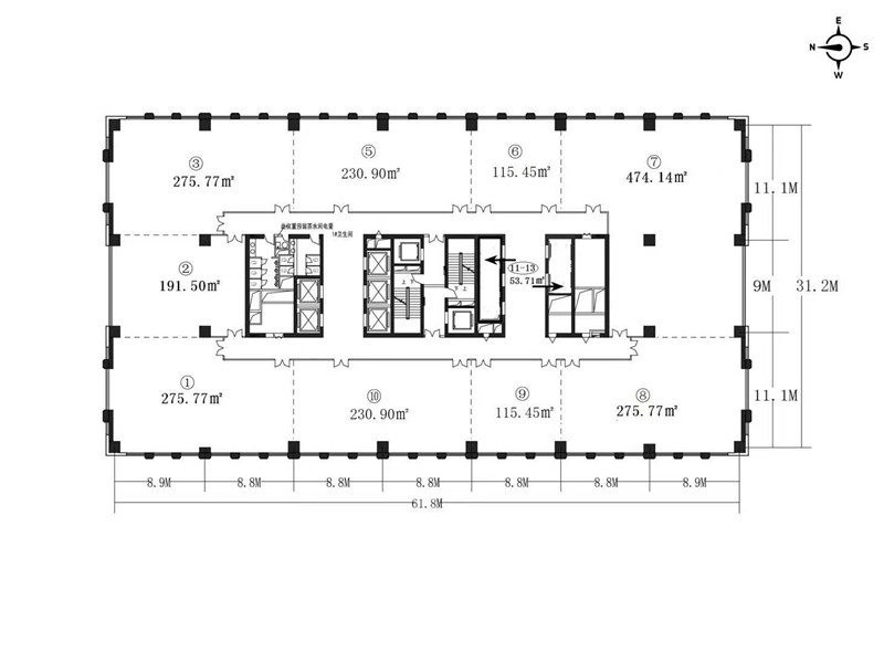
                            总建筑面积73833.41m²
                            
                            使  用  率 70%
                            绿  化  率30%
                            
                            电  梯  数10部日立电梯(高低区各5部)
                            空        调美国开利两管制 中央空调
                            
                            网 络线上网,8平方米一个信息点,主干采用光纤 
                            开  发  商上海复地投资管理有限公司
                            
                            物业公司 北京高地物业管理有限公司
                            入住企业顽石互动(北京)网络科技有限公司、招金期货、复星医药、麦田、金山、华远国旅、智联招聘、百泰传媒、百泰、智联招聘、华远国旅、国华人寿保险公司、SK等
                            地铁 6号线  东大桥站
                            
                            	公交
                              
                                    75路、126路、夜6路、快速公交2线区间、快速直达专线78路等                               
                            
                            通讯地址朝阳 区 朝阳北路237号
                           
                            物  业  费26元/月/㎡
                            配套设施酒店 、高端餐饮 、购物中心 、银行
                            
                            	安防系统
                                
                                   楼宇自动化管理系统(BAS)、办公自动化系统(OAS)、及停车场自动化收费管理系统(PAS)、火灾自动报警系统(FAS)                                
                             
                            是否涉外 是
                            能否注册是
                            
                        
                        	出租房源
                        
                        - 
                                	
                                        
                                        国贸 CBD核心区 东大桥双地铁 6/12号线 复星国际大厦 ...复星国际大厦房源面积:821㎡ 装修状态 :精装 付款方式:押三付三日租金:8.20 元/天/m²月租金204772元可注册 办公家具 地铁10分钟 市政供暖 - 
                                	
                                        
                                        东三环 CBD 6/12号线 东大桥地标 复星国际大厦 588.9...复星国际大厦房源面积:589㎡ 装修状态 :精装 付款方式:押三付三日租金:7.80 元/天/m²月租金139741元可注册 办公家具 地铁10分钟 市政供暖 - 
                                	
                                        
                                        东三环 6/12号线 东大桥地标 复星国际大厦502㎡ 写字楼出租复星国际大厦房源面积:502㎡ 装修状态 :精装 付款方式:押三付三日租金:8.30 元/天/m²月租金126735元可注册 办公家具 含税 市政供暖 - 
                                	
                                        
                                        国贸 CBD 6/12号线 东大桥 复星国际大厦 467.27㎡ 写字...复星国际大厦房源面积:467㎡ 装修状态 :精装 付款方式:押三付三日租金:8.00 元/天/m²月租金113637元可注册 办公家具 地铁10分钟 市政供暖 - 
                                	
                                        
                                        CBD 6/12号线东大桥 复星国际大厦 466.6㎡ 写字楼出租复星国际大厦房源面积:467㎡ 装修状态 :精装 付款方式:押三付三日租金:8.30 元/天/m²月租金117899元可注册 地铁10分钟 市政供暖 
                        	周边地图
                        
                        