当前位置:房源网 > 写字楼
<
>
楼盘介绍
北矿金融大厦位于西二环,稀缺城市核心地段,与三里河国家行政办公区、金融街商圈、中关村商圈紧密相连,步行10分钟可至三里河,开车5分钟抵达金融街,向北3.5公里便可到达中关村。
大厦临近西直门和金融街两大核心商圈,北邻西直门外大街,西近白石桥,闹中取静,3分钟步行地铁动物园站,交通便捷。大厦外观大气稳重,具有典型的金融街特色,内部框架结构,空间布局合理,高品质硬件与技术完美结合,势必成为西城区金融商务办公新贵,引领企业腾飞。
楼盘参数
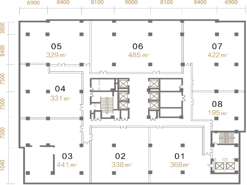
项目级别 甲级
楼 层 数 地下3层,地上11层
占地面积6604m²
总建筑面积36175m²
使 用 率 70%
绿 化 率30%
电 梯 数迅达电梯 9 部客梯,2部货梯
空 调约克 中央空调 24小时恒温恒湿机房
网 络联通、移动、电信
开 发 商北矿金融大厦写字楼出租
物业公司第一太平戴维斯(顾问)
入住企业
地铁4号线 动物园站 6号线 车公庄西站
公交
机场大巴世纪坛,六里桥线,运通,106临线,,632快等
通讯地址西城区文兴街1号
物 业 费30元/月/㎡
配套设施酒店 、高端餐饮 、购物中心 、银行
安防系统
电子巡更,视频监控,独立门禁系统
是否涉外 是
能否注册是
出租房源
周边地图
