当前位置:房源网 > 写字楼
<
>
楼盘介绍
京龙大厦地处北京朝阳区CBD黄金地段,南邻中央电视台,北邻团结湖公园,东邻三环路畔,西邻朝阳北路延长线。大厦总建筑面积20686平方米,建筑物高80米,楼高22层。地铁6/10号线呼家楼站约251米。大厦属于邮电部门产业,故大厦内智能通讯系统高度发达。
楼盘参数
项目级别 甲级
楼 层 数 地下2层,地上23层
占地面积m²
总建筑面积 20686m²
使 用 率 70%
绿 化 率30%
电 梯 数蒂森克虏伯 2部客梯 1部货梯
空 调2管制风机盘管+新风系统
网 络联通
开 发 商邮电国旅集团
物业公司京龙大厦物业管理公司
入住企业中信国安,昕日货运有限公司、必胜客等
地铁6/10号线呼家楼站
公交
75路、126路、113路、350路、402路、405路、671路等
通讯地址朝阳区朝阳北路225号
物 业 费24元/月/㎡
配套设施银行,酒店,商场,餐饮
安防系统
火灾自动报警及消防联动系统
是否涉外 是
能否注册是
出租房源
-
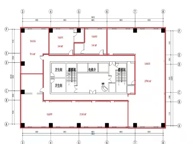
呼家楼 团结湖公园 京龙大厦 1338㎡ 写字楼出租京龙大厦房源面积:1338㎡ 装修状态 :精装 付款方式:押三付三日租金:5.90 元/天/m²月租金240116元可注册 地铁10分钟 可分割 市政供暖 -
东三环呼家楼 毗邻CCTV 京龙大厦920㎡ 整层写字楼出租京龙大厦房源面积:920㎡ 装修状态 :精装 付款方式:押三付三日租金:6.70 元/天/m²月租金187489元可注册 办公家具 地铁10分钟 市政供暖 -
东三环 呼家楼6/10号线 双地铁 京龙大厦920㎡ 整层写字楼出...京龙大厦房源面积:920㎡ 装修状态 :精装 付款方式:押三付三日租金:6.50 元/天/m²月租金181892元可注册 办公家具 地铁10分钟 市政供暖
周边地图
