当前位置:房源网 > 写字楼 > 东长安街第一排 1号线永安里站 50米 国际财源中心1366.26㎡写字楼出租
<
>
可注册
地铁10分钟
含税
机房冷凝水
市政供暖
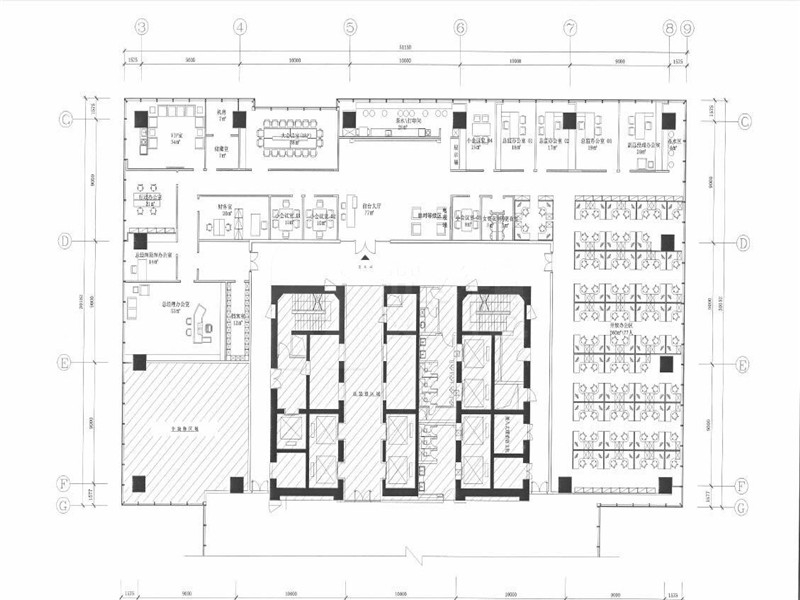
东长安街第一排 1号线永安里站 50米 国际财源中心1366.26㎡写字楼出租
国际财源中心 (IFC大厦)
10.90元/㎡/天月租金:452886元
1366㎡
出租面积
精装
装修程度
北京朝阳区建国门外大街甲8号
1号线
2号线
10号线
